LOGIN
HOME
CATEGORIES
UPLOAD FILE
PRICING
HOUSE PLAN
ABOUT US
CONTACT US
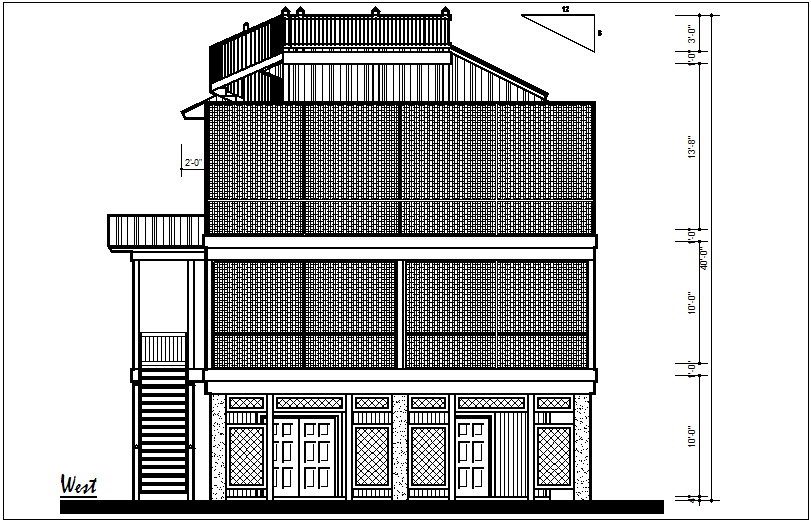
West elevation detail dwg file
Home
Categories
Architecture
House Plan
West elevation detail dwg file
Uploaded by:
Dhara
View Profile
View Profile
Description
West elevation detail dwg file, House plan elevation detail with naming door, window, large door, reeling and all dimension floor detail of the dimension details, etc.
File Type:
DWG
File Size:
119 KB
Category::
Architecture
Sub Category::
House Plan
type:
Free
Uploaded by:
Dhara
View Profile
Download
Add to libary
find Latest
Related
Files