LOGIN
HOME
CATEGORIES
UPLOAD FILE
PRICING
HOUSE PLAN
ABOUT US
CONTACT US
Bus terminal hotel and office elevation dwg file
Home
Categories
Architecture
Corporate Building
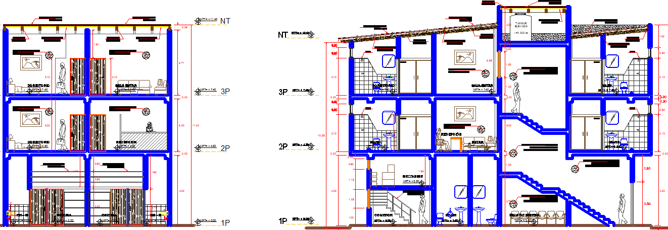
Bus terminal hotel and office elevation dwg file
Uploaded by:
Dipika
View Profile
View Profile
Description
Bus terminal hotel and office elevation dwg file, this file contains elevation of a bus terminal office containing table and chairs, human figure detailing etc
File Type:
DWG
File Size:
5.3 MB
Category::
Architecture
Sub Category::
Corporate Building
type:
Free
Uploaded by:
Dipika
View Profile
Download
Add to libary
find Latest
Related
Files