Iconic school plan dwg file
Description
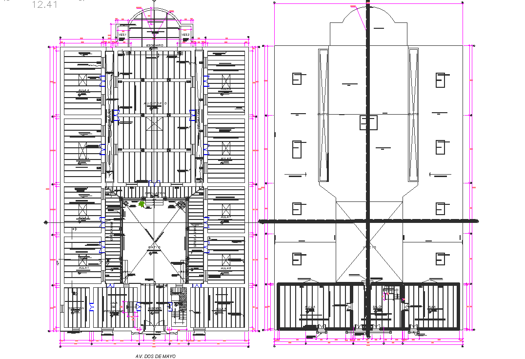
Iconic school plan dwg file in school plan with area distribution with entry way,class
room view,professor office,director office,wall and auditorium view and door and window mounting position with necessary dimension.
Uploaded by:
