Administration office architecture layout plan details dwg file
Description
Administration office architecture layout plan details dwg file.
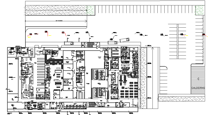
Administration office architecture layout plan details that includes a detailed view of main entry door, reception area, general hall, waiting and seating lounge, admin office, head office, employee offices, meeting room, conference room, kitchen, dining area, toilet and much more of office layout plan details.
Uploaded by:

