LOGIN
HOME
CATEGORIES
UPLOAD FILE
PRICING
HOUSE PLAN
ABOUT US
CONTACT US
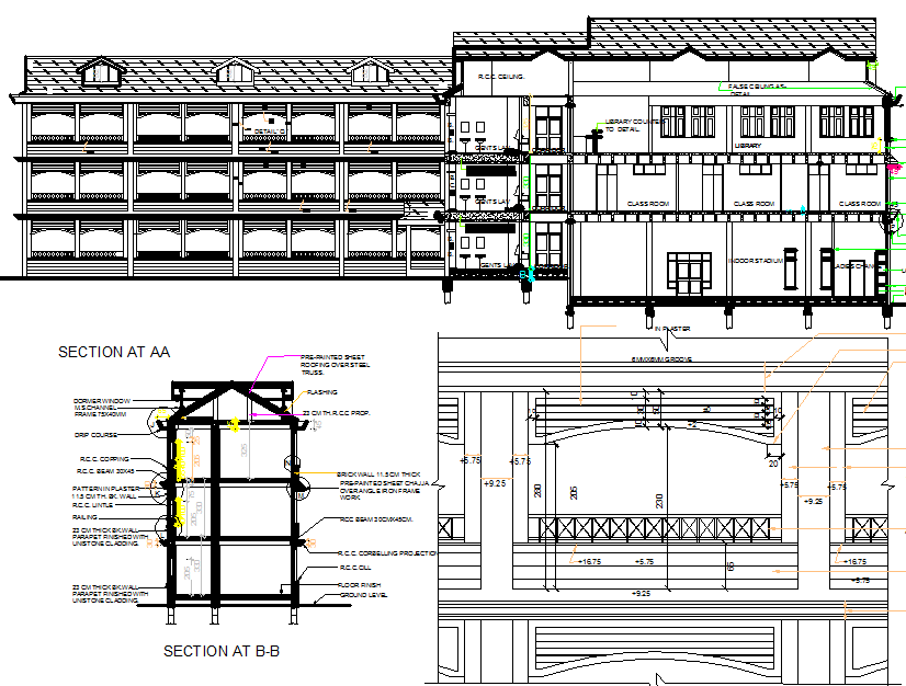
Elevation of a school dwg file
Home
Categories
Architecture
School & Hostel
Elevation of a school dwg file
Uploaded by:
Dipika
View Profile
View Profile
Description
Elevation of a school dwg file, this file contains elevation of school, veranda details, sectional detail
File Type:
DWG
File Size:
5.7 MB
Category::
Architecture
Sub Category::
School & Hostel
type:
Gold
Uploaded by:
Dipika
View Profile
Download
Add to libary
find Latest
Related
Files