LOGIN
HOME
CATEGORIES
UPLOAD FILE
PRICING
HOUSE PLAN
ABOUT US
CONTACT US
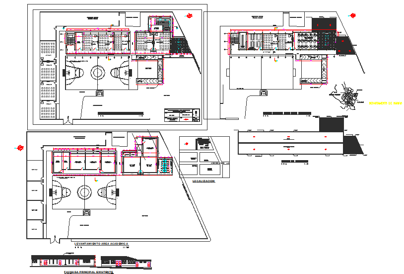
Layout plan and elevation detail dwg file
Home
Categories
Architecture
Collage Drawing
Layout plan and elevation detail dwg file
Uploaded by:
Dhara
View Profile
View Profile
Description
Layout plan and elevation detail dwg file, Layout plan and elevation detail with dimension detail, naming detail, furniture detail with chair and table detail, etc.
File Type:
DWG
File Size:
1.3 MB
Category::
Architecture
Sub Category::
Collage Drawing
type:
Gold
Uploaded by:
Dhara
View Profile
Download
Add to libary
find Latest
Related
Files