Commercial Plan and elevation detail dwg file
Description
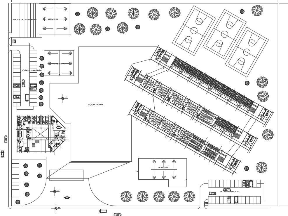
Commercial Plan and elevation detail dwg file, Commercial Plan and elevation detail with section line detail, naming detail, cut out detail, front elevation detail, etc.
Uploaded by:
Uploaded by: