Basement plan for clinic dwg file
Description
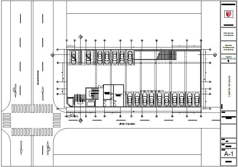
Basement plan for clinic dwg file in plan with view of parking area view for vehicle with main entry way,In and out way,car view,wall and wall support view with necessary dimension view in plan.
Uploaded by:

