LOGIN
HOME
CATEGORIES
UPLOAD FILE
PRICING
HOUSE PLAN
ABOUT US
CONTACT US
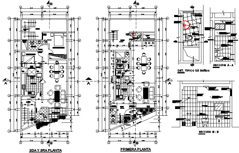
Housing two levels plan detail dwg file
Home
Categories
Architecture
House Plan
Housing two levels plan detail dwg file
Uploaded by:
Dhara
View Profile
View Profile
Description
Housing two levels plan detail dwg file, with dimension detail, naming detail, section line detail, toilet plan and section detail, etc.
File Type:
DWG
File Size:
1.1 MB
Category::
Architecture
Sub Category::
House Plan
type:
Gold
Uploaded by:
Dhara
View Profile
Download
Add to libary
find Latest
Related
Files