LOGIN
HOME
CATEGORIES
UPLOAD FILE
PRICING
HOUSE PLAN
ABOUT US
CONTACT US
Architectural plan detail dwg file.
Home
Categories
Architecture
Famous Architecture
Architectural plan detail dwg file.
Uploaded by:
Liam
White
View Profile
View Profile
Description
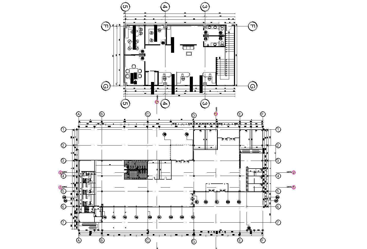
Architectural plan with reception area, waiting area, cabins, office desks, working area etc., Plan has given all the detail with dimensions.
File Type:
DWG
File Size:
2.8 MB
Category::
Architecture
Sub Category::
Famous Architecture
type:
Gold
Uploaded by:
Liam
White
View Profile
Download
Add to libary
find Latest
Related
Files