Commercial building dwg file

Commercial building dwg file
Profile

Uploaded by:

Poonam

Description
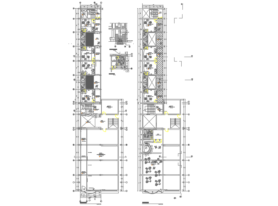
Commercial building dwg file. Find construction plan, structure plan, section plan, foundation plan and beam detail, a layout plan of all floor level and elevation design of Commercial building.
Profile

Uploaded by:

Poonam

find Latest

Related Files

WhatsApp Chat