The convenience store in small town plan detail dwg file.
Description
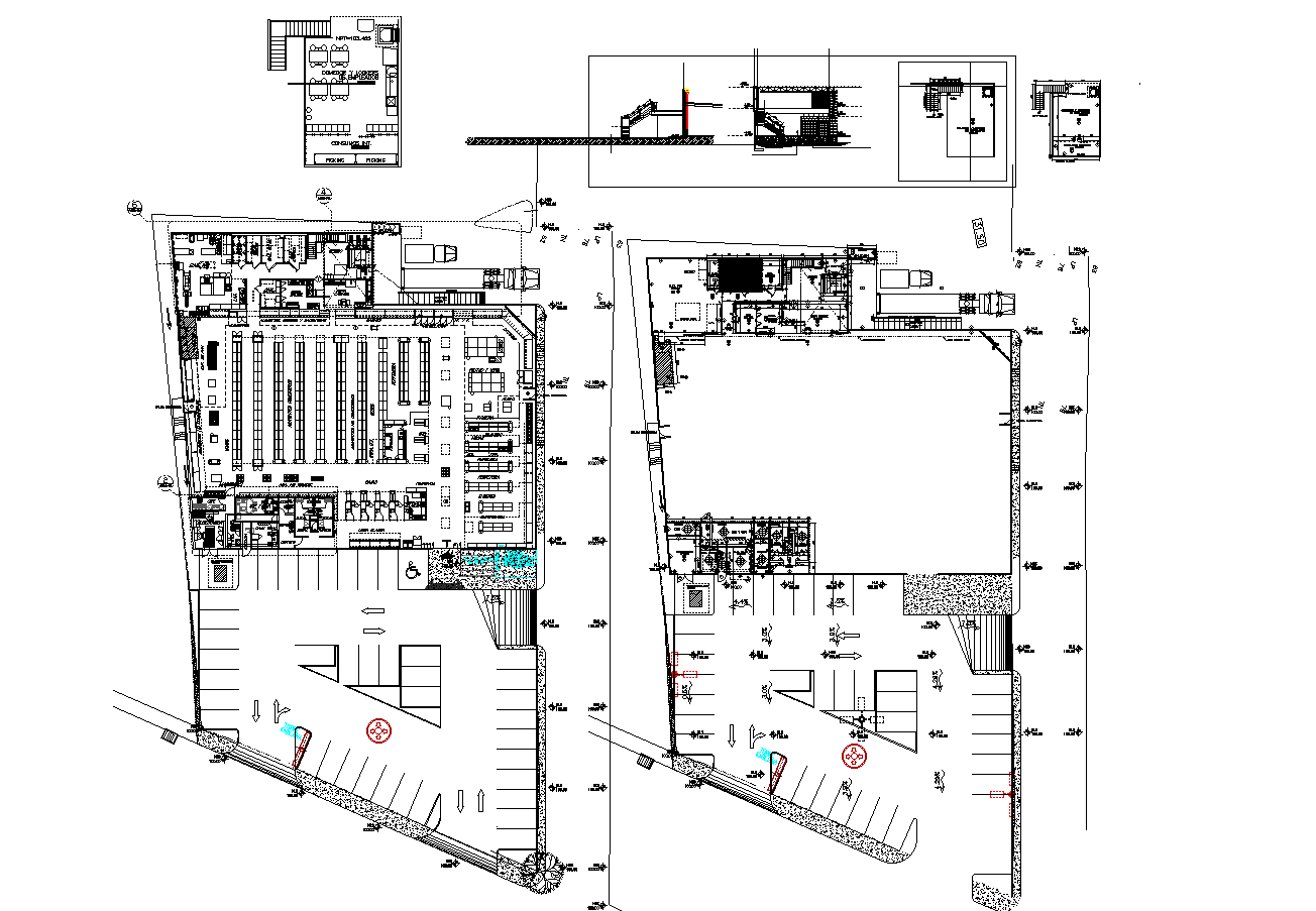
The convenience store in small town. Cementation plan with sections. A town is designed beautifully with a plan. And elevations are shown with detailing.

Uploaded by:
Liam
White

Uploaded by:
White