LOGIN
HOME
CATEGORIES
UPLOAD FILE
PRICING
HOUSE PLAN
ABOUT US
CONTACT US
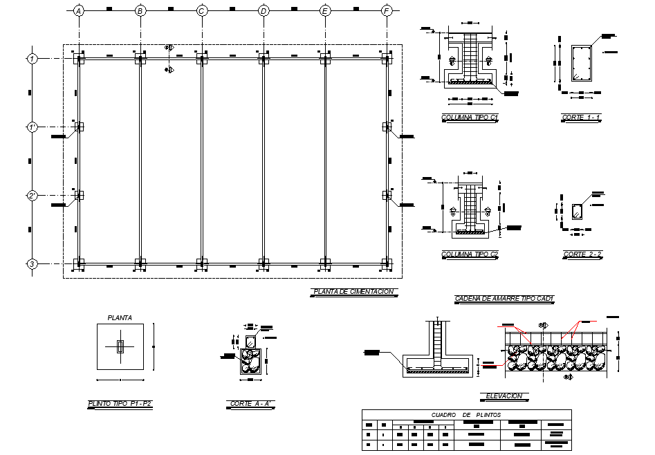
Foundation plan detail
Home
Categories
Structure
Footing Detail
Foundation plan detail
Uploaded by:
Dhara
View Profile
View Profile
Description
Foundation plan detail, plan and section detail, diemnsion detail, reinfroceemnt detail, section line detail, bolt nut detail, etc.
File Type:
DWG
File Size:
534 KB
Category::
Structure
Sub Category::
Footing Detail
type:
Free
Uploaded by:
Dhara
View Profile
Download
Add to libary
find Latest
Related
Files