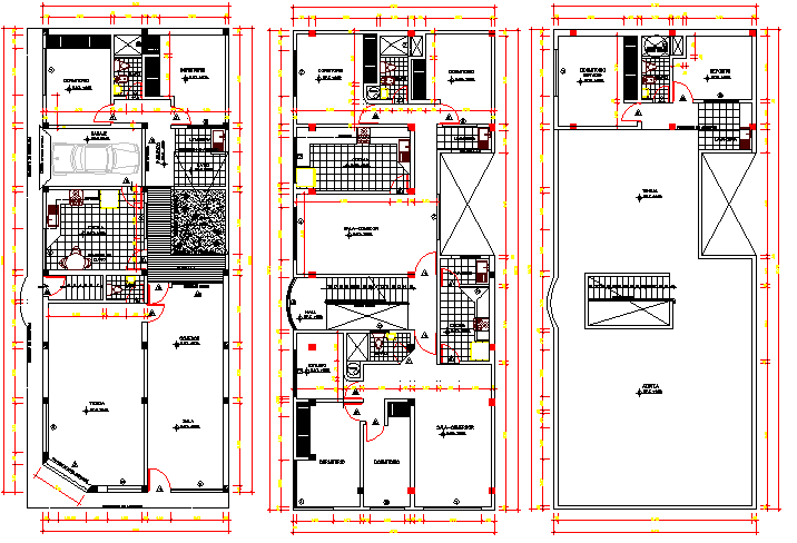
Three level house architecture layout plan details dwg file
Description
Three level house architecture floor layout plan details dwg file.
Three level house architecture layout plan details that includes a detailed view of ground floor, first floor, top floor, car parking, mini garden, main entry door, family hall, living area, bedroom, master bedroom, kitchen, dining area, toilets and bathroom, terrace and much more of house layout plan.
Uploaded by:

