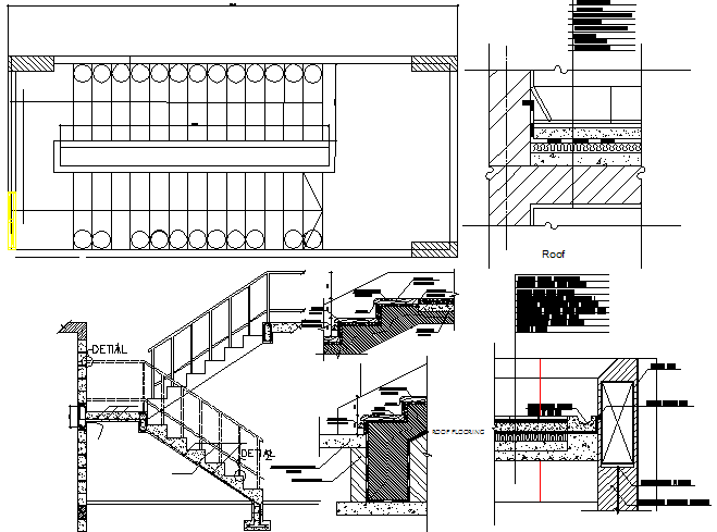
Cut sectional and staircase details of office building dwg file
Description
Cut sectional and staircase details of office building dwg file.
Cut sectional and staircase details of office building that includes a detailed view of cut sectional view of office departments, main sectional view of staircase, wooden railing, steps details, dimensions, joints and much more of staircase details.
Uploaded by:

