Clinic Plan and Elevation Detail
Description
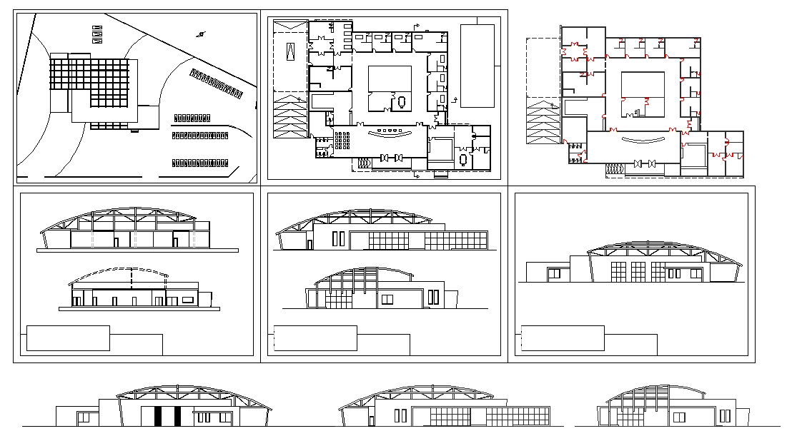
A clinic is a health care facility that is primarily devoted to the care of outpatients. Clinic Plan and Elevation Detail File, Clinic Plan and Elevation Detail DWG.

Uploaded by:
Neha
mishra

Uploaded by:
mishra