LOGIN
HOME
CATEGORIES
UPLOAD FILE
PRICING
HOUSE PLAN
ABOUT US
CONTACT US
Proposed road plan detail dwg file.
Home
Categories
Architecture
Road & Bridge
Proposed road plan detail dwg file.
Uploaded by:
Liam
White
View Profile
View Profile
Description
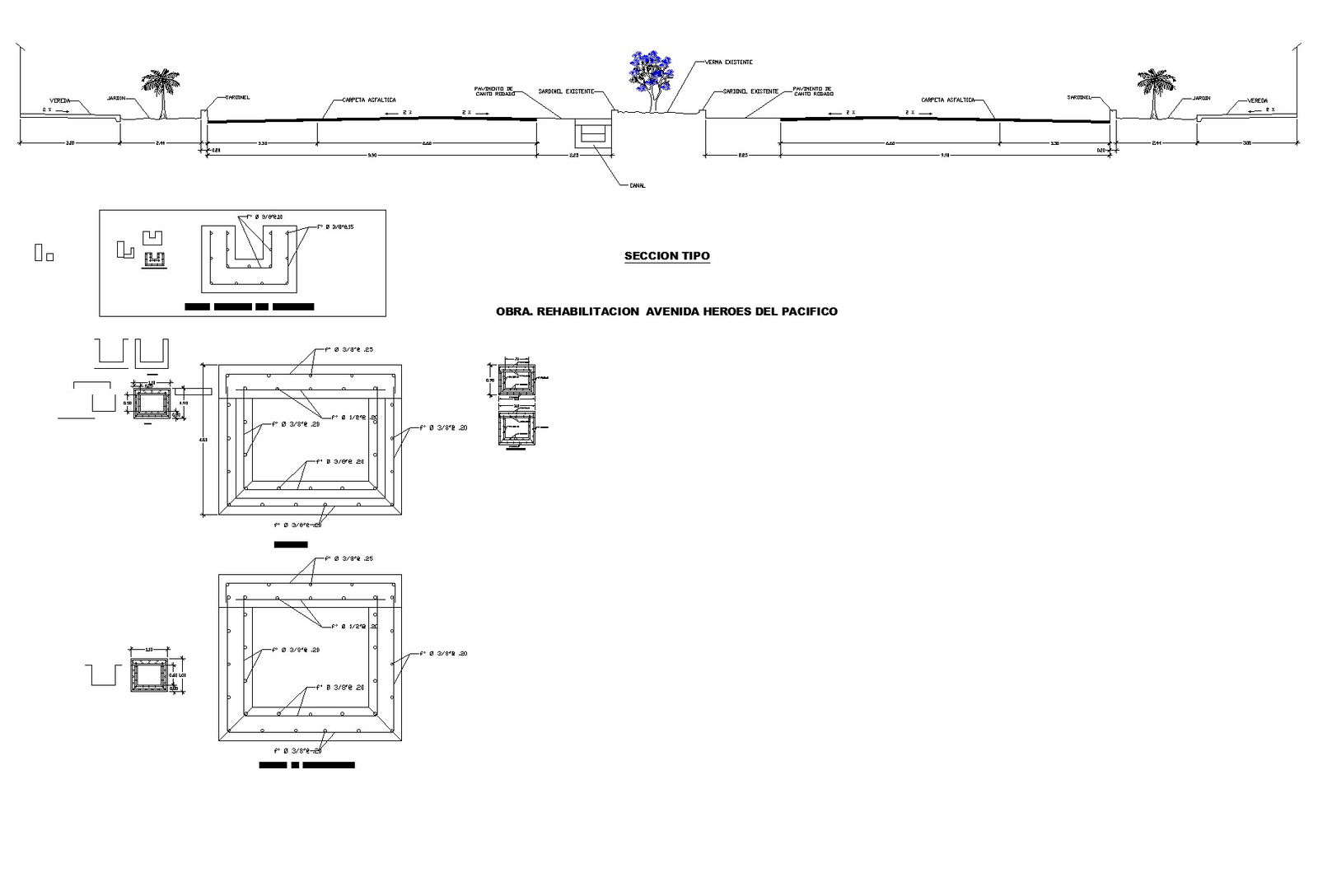
Proposed road plan. The plan and elevation with detailed drawings. Detailing of reinforced with protection, sewer detail, etc.,
File Type:
DWG
File Size:
1.1 MB
Category::
Architecture
Sub Category::
Road & Bridge
type:
Gold
Uploaded by:
Liam
White
View Profile
Download
Add to libary
find Latest
Related
Files