LOGIN
HOME
CATEGORIES
UPLOAD FILE
PRICING
HOUSE PLAN
ABOUT US
CONTACT US
Mall project plan layout file
Home
Categories
Architecture
Mall & Shopping Center
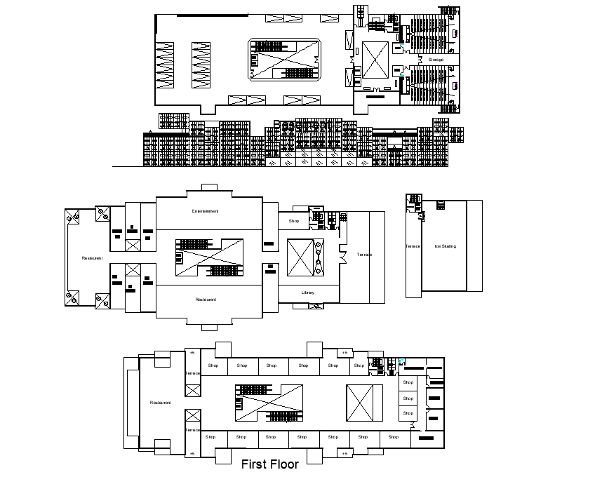
Mall project plan layout file
Uploaded by:
Dhara
View Profile
View Profile
Description
Mall project plan layout file, hatching detail, cut out detail, naming detail, ramp detail, stair detail, glass fiber detail, etc.
File Type:
DWG
File Size:
2 MB
Category::
Architecture
Sub Category::
Mall & Shopping Center
type:
Gold
Uploaded by:
Dhara
View Profile
Download
Add to libary
find Latest
Related
Files