Sanitary services section, plan and doors and windows structure details dwg file
Description
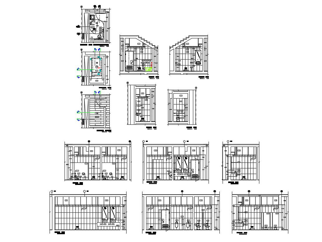
Sanitary services section, plan and doors and windows structure details that includes a detailed view of toilet sectional details, passage, sanitary equipment installation details, doors and ventilation details, plumbing details, interior details, dimensions details, wall section details, cover plan details, doors and windows installation details, structure details and much more of sanitary installation details.
Uploaded by:

