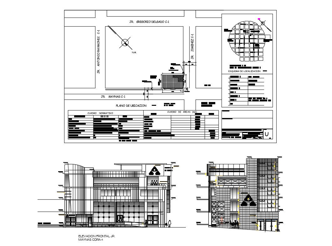
Main and cut elevation, site plan and auto-cad details of Association of savings and credits san martin building dwg file
Description
Main and cut elevation, site plan and auto-cad details of Association of savings and credits san martin building that includes a detailed view of flooring view, doors and windows view, staircase view, balcony view, wall design, dimensions, roof or terrace view, outdoor roads, landmarks, location map and much more of building details.
Uploaded by:

