family house plan and framing plan cad drawing details dwg file
Description
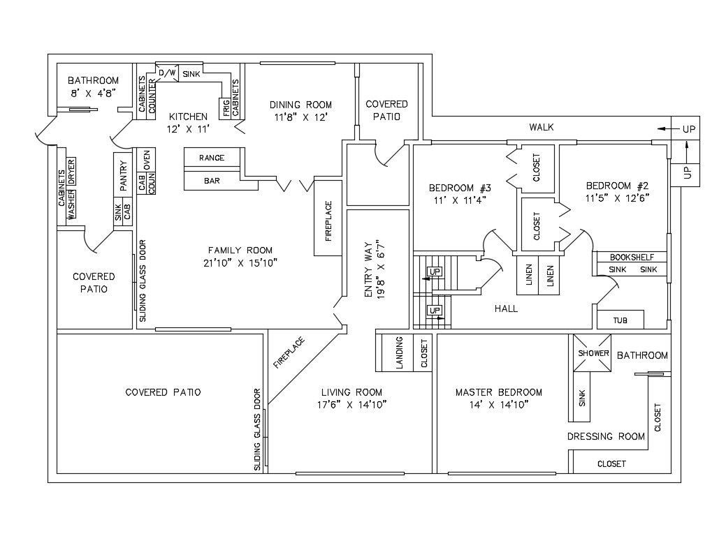
family house plan and framing plan cad drawing details that includes a detailed view of main entry house door, drawing room, living room, family hall, kitchen, dining area, indoor staircases, laundry area, balcony, bedroom, master bedroom, toilets and bathroom, indoor doors, furniture details with wood posts, joints, decking, grider pre-engineering, steel pipe column and much more of house details.
Uploaded by:

