Foundation plan, cover plan, first floor plan and column details of hospital dwg file
Description
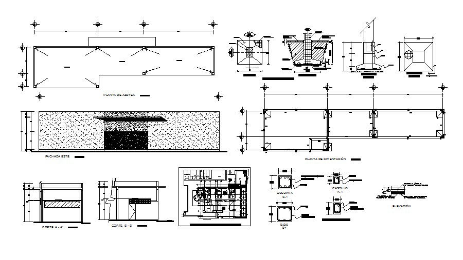
Foundation plan, cover plan, first floor plan and column details of hospital that includes a detailed view of the foundation, side typical shoe, typical central shoe, columns, foundations, shoes, cistern tank, walls of concr. arm., beams flat, peralted beams, foundation beams, (cement: sand: crushed stone), typical detail of reinforcement and ended of walls of masonry, detail of cistern, cure the concrete by wet way minimum 7 days, - avoid splices and overlaps in areas of maximum effort with reception area, waiting area, consultant room, specialized departments, operation theater, cleaning departments, pharmacy stores, special and general ward, specimen collection, emergency laboratory, imagenology, laboratories, circumbulatory, waiting rooms, sanitary man, duct and much more of hospital details.
Uploaded by:

