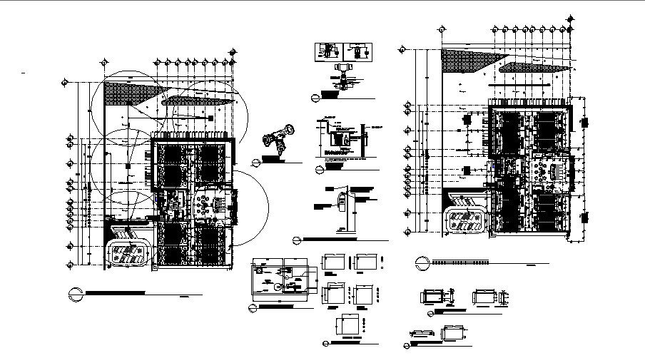
Auditorium hall distribution plan and water tank details dwg file
Description
Auditorium hall distribution plan and water tank details that includes a detailed view of method of fixing water gauge meter for domestic aise withing the cavity of boundry wall, septic tank plan details, elevation and all sided sectional details, dimensions details, manhole plan details, water depth detail, memory of material details, structure detail , wall design with basement car parking floor details, children play area, common lobby, theater, passage, display area, shopping plaza department, green space, gallary, theme restaurant, viewing gallery, kitchen, waiting area, open space, sanitary facilitites and much more of center details.
Uploaded by:

