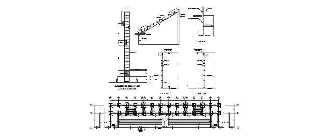
Foundation plan and staircase constructive structure details dwg file
Description
Foundation plan and staircase constructive structure details that includes a detailed view of the foundation, side typical shoe, typical central shoe, columns, foundations, shoes, cistern tank, walls of concr. arm., beams flat, peralted beams, foundation beams, (cement: sand: crushed stone), typical detail of reinforcement and ended of walls of masonry, detail of cistern, cure the concrete, vest scenario, ceramic floor, horizontal section, tapizon novoflor corrugated beige, ceramic floor clime color Blanco, foot print ceramic, novice glue, steps details, supportive wooden railing installation, base floor concrete plan, wall construction dimensions and much more of structure details.
Uploaded by:

