LOGIN
HOME
CATEGORIES
UPLOAD FILE
PRICING
HOUSE PLAN
ABOUT US
CONTACT US
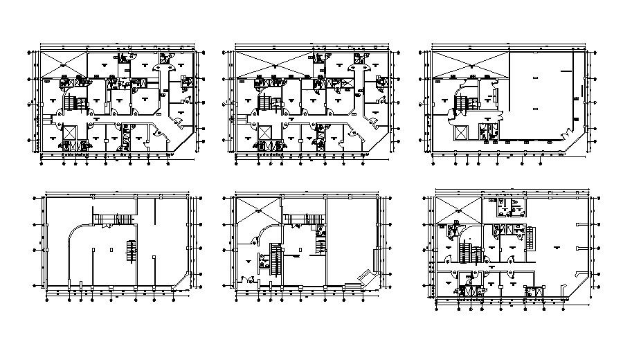
Hostel Design Plans In AutoCAD File
Home
Categories
Architecture
School & Hostel
Hostel Design Plans In AutoCAD File
Uploaded by:
Eiz
Luna
View Profile
View Profile
Description
Hostel Design Plans In AutoCAD File which includes detail of hall, rooms, passage, storage room, washroom, it also gives detail of staircase.
File Type:
DWG
File Size:
949 KB
Category::
Architecture
Sub Category::
School & Hostel
type:
Gold
Uploaded by:
Eiz
Luna
View Profile
Download
Add to libary
find Latest
Related
Files