LOGIN
HOME
CATEGORIES
UPLOAD FILE
PRICING
HOUSE PLAN
ABOUT US
CONTACT US
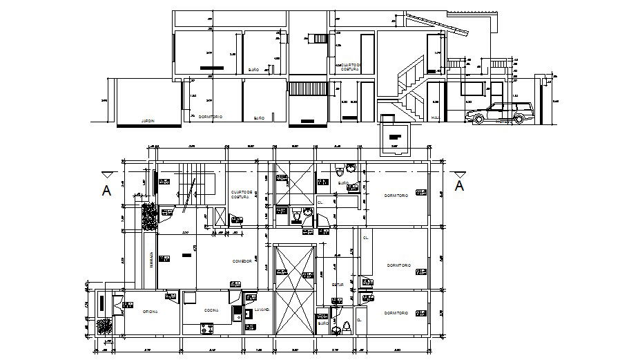
Autocad drawing of the electrical layout with detail dimension
Home
Categories
Architecture
House Plan
Autocad drawing of the electrical layout with detail dimension
Uploaded by:
Eiz
Luna
View Profile
View Profile
Description
Dwg file of residence house with elevation it includes a drawing room, kitchen, master bedroom, kids bedroom, toilets, and wash area.
File Type:
DWG
File Size:
787 KB
Category::
Architecture
Sub Category::
House Plan
type:
Gold
Uploaded by:
Eiz
Luna
View Profile
Download
Add to libary
find Latest
Related
Files