LOGIN
HOME
CATEGORIES
UPLOAD FILE
PRICING
HOUSE PLAN
ABOUT US
CONTACT US
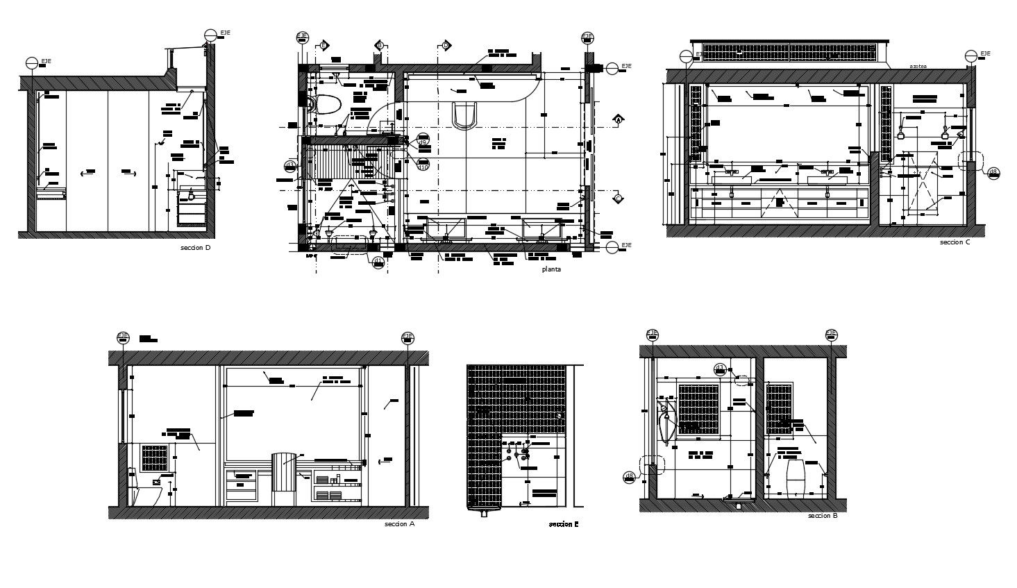
Dwg file of master bathroom bathroom layout
Home
Categories
Interior Design
Bathroom Interior
Dwg file of master bathroom bathroom layout
Uploaded by:
K.H.J
Jani
View Profile
View Profile
Description
Dwg file of master bathroom layout it include floor layout,sectional elevation,bathroom accessories, etc
File Type:
DWG
File Size:
254 KB
Category::
Interior Design
Sub Category::
Bathroom Interior
type:
Gold
Uploaded by:
K.H.J
Jani
View Profile
Download
Add to libary
find Latest
Related
Files