LOGIN
HOME
CATEGORIES
UPLOAD FILE
PRICING
HOUSE PLAN
ABOUT US
CONTACT US
Dwg file of toilet drawing
Home
Categories
Architecture
Bathroom & Toilet Drawing
Dwg file of toilet drawing
Uploaded by:
K.H.J
Jani
View Profile
View Profile
Description
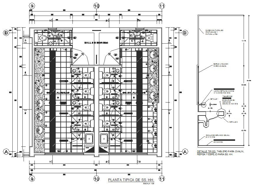
Dwg file of toilet drawing it include floor layout,basin,w.c,floor layout,urinal area, etc
File Type:
DWG
File Size:
575 KB
Category::
Architecture
Sub Category::
Bathroom & Toilet Drawing
type:
Gold
Uploaded by:
K.H.J
Jani
View Profile
Download
Add to libary
find Latest
Related
Files