LOGIN
HOME
CATEGORIES
UPLOAD FILE
PRICING
HOUSE PLAN
ABOUT US
CONTACT US
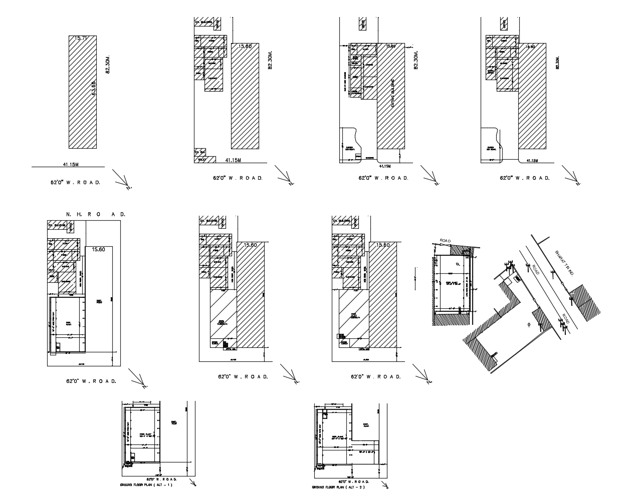
Autocad drawing of building layout
Home
Categories
Architecture
High Rise Building
Autocad drawing of building layout
Uploaded by:
K.H.J
Jani
View Profile
View Profile
Description
Autocad drawing of building layout it include site plan,key plan, existing building,etc
File Type:
DWG
File Size:
329 KB
Category::
Architecture
Sub Category::
High Rise Building
type:
Gold
Uploaded by:
K.H.J
Jani
View Profile
Download
Add to libary
find Latest
Related
Files