Club house plan with detail dimensions in dwg file
Description
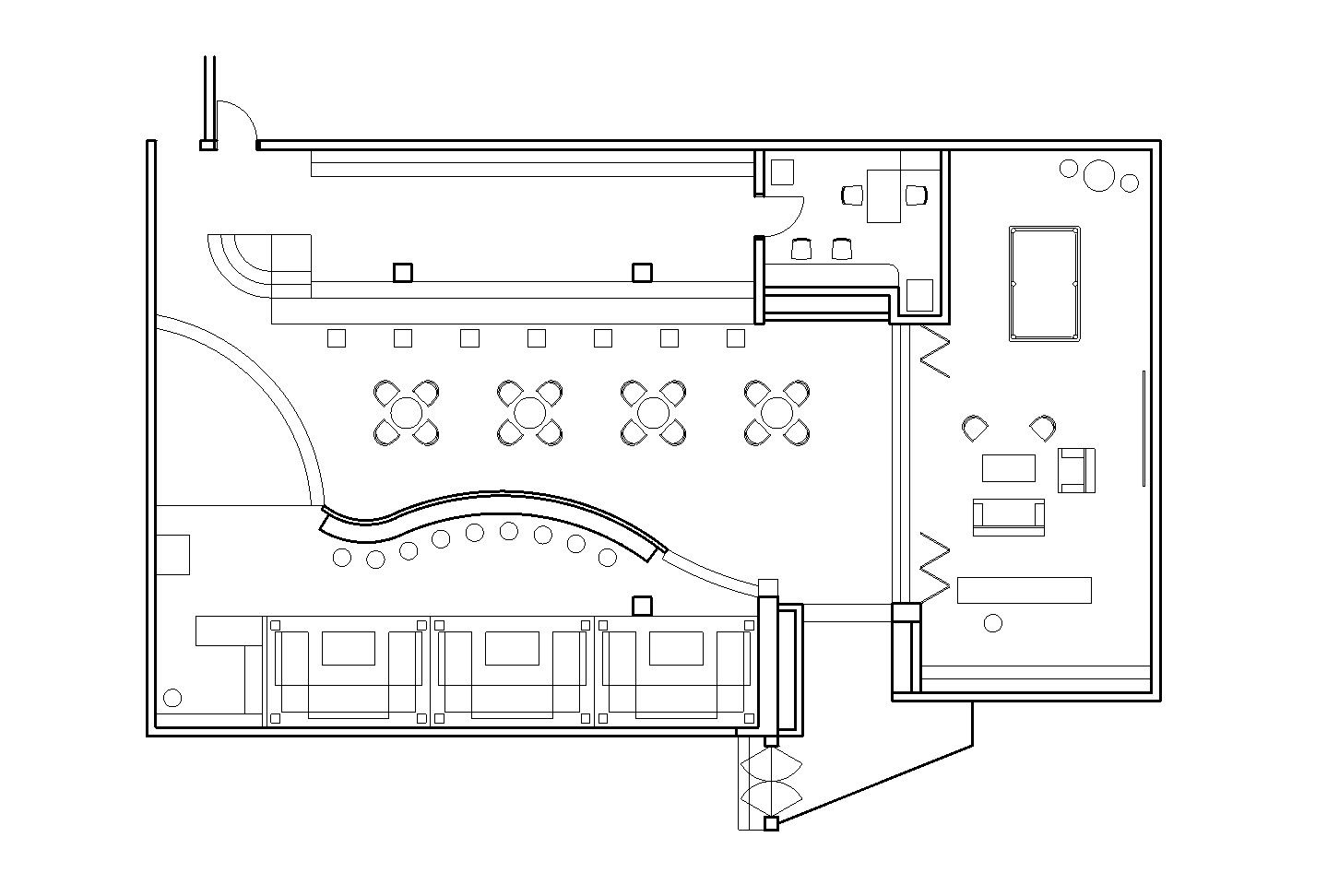
Club house plan with detail dimensions in dwg file which provide detail of cafe area, bar area, VIP area, mini bar, live band stage, DJ, office area, etc.

Uploaded by:
Eiz
Luna

Uploaded by:
Luna