LOGIN
HOME
CATEGORIES
UPLOAD FILE
PRICING
HOUSE PLAN
ABOUT US
CONTACT US
Autocad drawing of clinic layout
Home
Categories
Architecture
Hospital Projects
Autocad drawing of clinic layout
Uploaded by:
K.H.J
Jani
View Profile
View Profile
Description
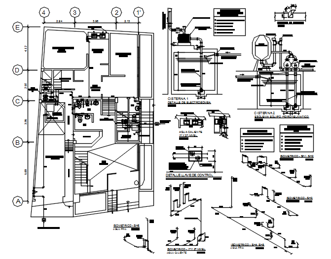
Autocad drawing of clinic layout it includes first-floor layout, construction detail,cistern detail,etc
File Type:
DWG
File Size:
439 KB
Category::
Architecture
Sub Category::
Hospital Projects
type:
Gold
Uploaded by:
K.H.J
Jani
View Profile
Download
Add to libary
find Latest
Related
Files