LOGIN
HOME
CATEGORIES
UPLOAD FILE
PRICING
HOUSE PLAN
ABOUT US
CONTACT US
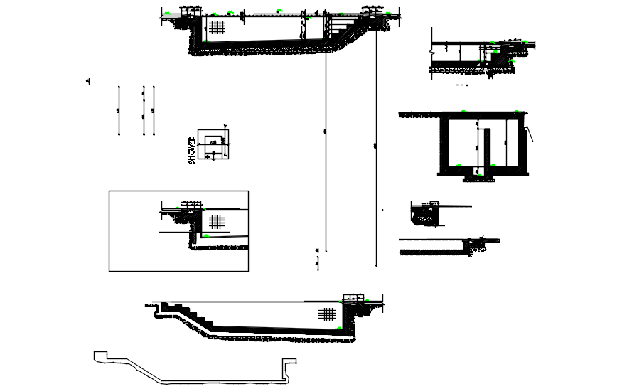
Construction detail of swimming pool
Home
Categories
Details
Interior Details
Construction detail of swimming pool
Uploaded by:
K.H.J
Jani
View Profile
View Profile
Description
Construction detail of swimming pool it includes section of pool,pool level,roof level,etc
File Type:
DWG
File Size:
647 KB
Category::
Details
Sub Category::
Interior Details
type:
Gold
Uploaded by:
K.H.J
Jani
View Profile
Download
Add to libary
find Latest
Related
Files