Bungalow Architecture Plan In AutoCAD File
Description
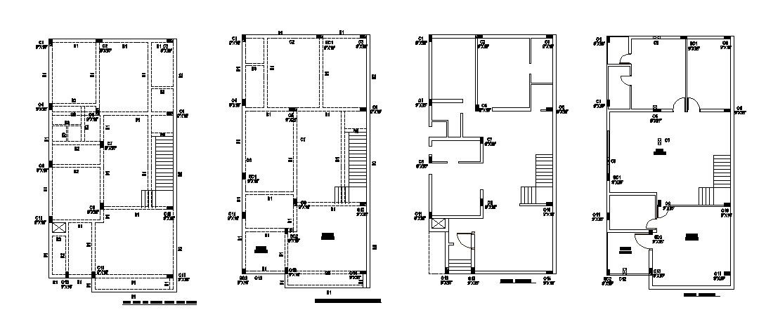
Bungalow Architecture Plan In AutoCAD File which provides detail of drawing room, bedroom, kitchen, dining room, bathroom. It also gives detail of the column location.

Uploaded by:
Eiz
Luna

Uploaded by:
Luna