LOGIN
HOME
CATEGORIES
UPLOAD FILE
PRICING
HOUSE PLAN
ABOUT US
CONTACT US
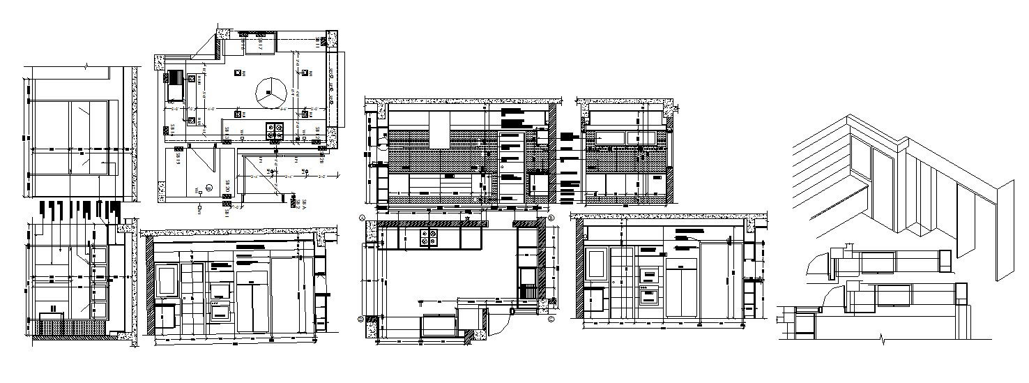
Small Kitchen Layout In DWG File
Home
Categories
Interior Design
Kitchen Interiors
Small Kitchen Layout In DWG File
Uploaded by:
K.H.J
Jani
View Profile
View Profile
Description
Small Kitchen Layout In DWG File it includes floor layout, electrical layout, isometric view. It also includes serving platform, drawer, overhead units.
File Type:
DWG
File Size:
783 KB
Category::
Interior Design
Sub Category::
Kitchen Interiors
type:
Gold
Uploaded by:
K.H.J
Jani
View Profile
Download
Add to libary
find Latest
Related
Files