Modern Small House Floor Plan In DWG File
Description
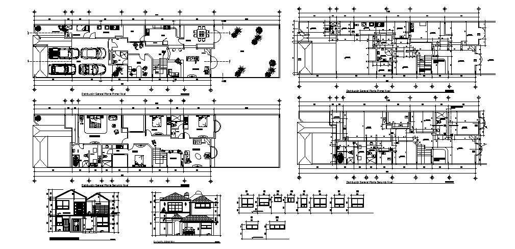
Modern Small House Floor Plan In DWG File which provides detail of the drawing-room, bedroom, kitchen, dining room, bathroom. It also gives detail of column.

Uploaded by:
Eiz
Luna

Uploaded by:
Luna