Drawing of the house with elevation details in dwg file
Description
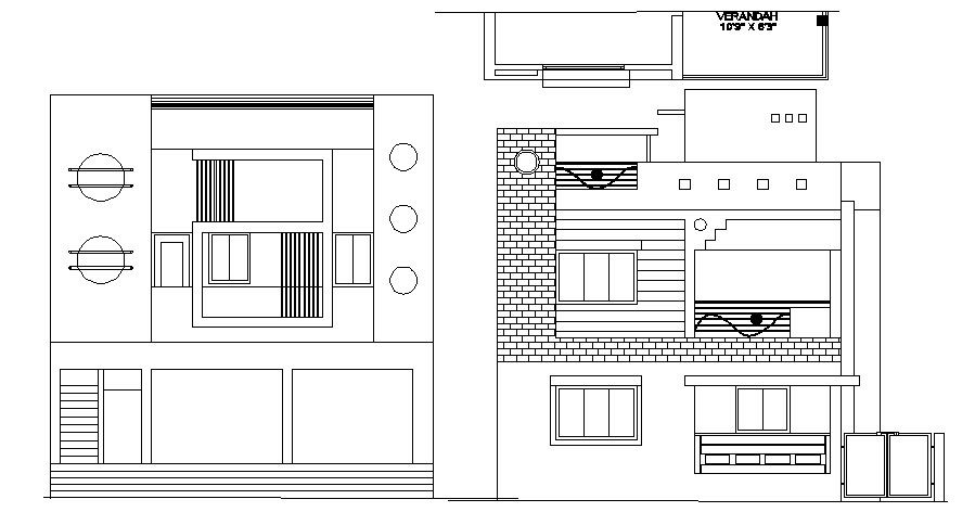
Drawing of the house with elevation details in dwg file which provides detail of front elevation, side elevation, detail of doors and windows, etc.

Uploaded by:
Eiz
Luna

Uploaded by:
Luna