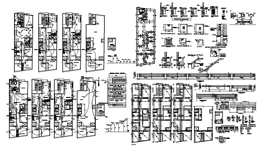
Electrical Layout Drawing In DWG File
Description
Electrical Layout Drawing In DWG File it includes a site plan, construction detail, the electrical layout of the ground floor, first floor, rooftop, staircase detail.

Uploaded by:
Eiz
Luna

Uploaded by:
Luna