2 d cad drawing of housing building Auto Cad software
Description
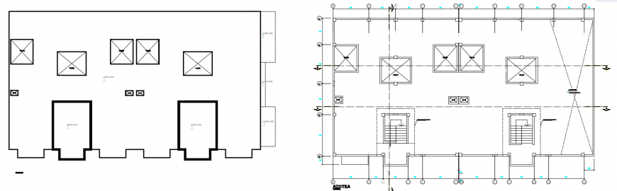
2d cad drawing of housing building autocad software detailed with rough plan with windows and doors and staircase and marked dimensions and section A and B.
Uploaded by:
Eiz
Luna
2d cad drawing of housing building autocad software detailed with rough plan with windows and doors and staircase and marked dimensions and section A and B.
Uploaded by:
Luna