Hotel Building Plan In AutoCAD File
Description
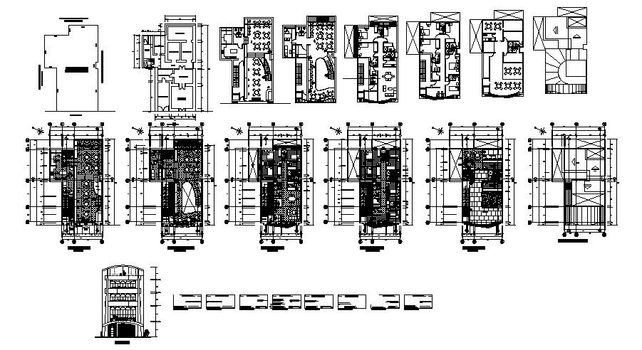
Hotel Building Plan In AutoCAD File it includes detail of hall, cafe area, office, kitchen, passage, bar area, rooms, bathroom. It also provides detail of terrace plan.

Uploaded by:
Eiz
Luna

Uploaded by:
Luna