Residential Building Layout Plan In AutoCAD File
Description
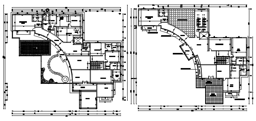
Residential Building Layout Plan In AutoCAD File which provides detail of porch, family room, drawing room, bedroom, master bedroom, dining room, kitchen, bathroom.

Uploaded by:
Eiz
Luna

Uploaded by:
Luna