Restaurant Plan In Dwg File
Description
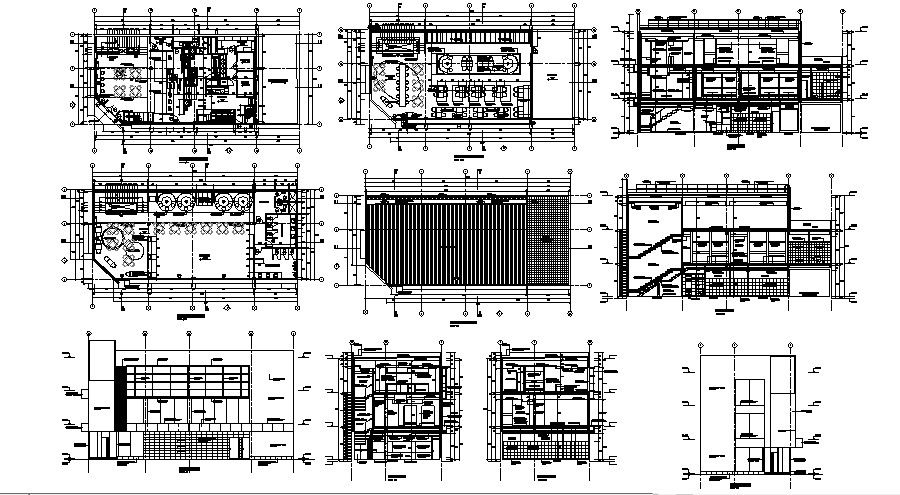
Restaurant Plan In Dwg File which provide detail dimension of the hall, cafe area, kitchen area, office area, playground, washroom, toilet, etc it also gives detail of different sections.

Uploaded by:
Eiz
Luna

Uploaded by:
Luna