Bathroom Detail
Description
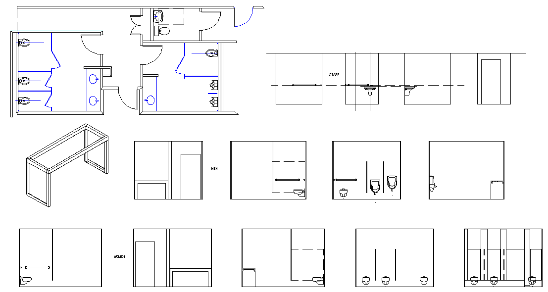
A bathroom is a room for personal hygiene activities, generally containing at minimum a toilet and sink. Bathroom Detail Design, Bathroom Detail Download file, Bathroom Detail DWG.

Uploaded by:
Harriet
Burrows

Uploaded by:
Burrows