Office floors layout plan, electrical installation and structure details dwg file
Description
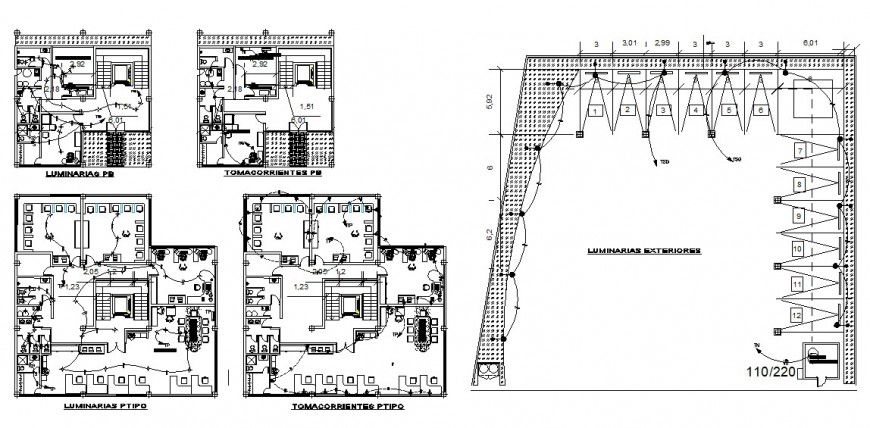
Office floors layout plan, electrical installation and structure details that includes a detailed view of reception area with waiting area and cabin and computer lab with counseling room and library and conference room details, manager cabin and meeting room, cleaning department with departmental office, smoking area, head offices with computation and schedule of loads with general notes and specifications, panel board details, riser diagram and much more of building details.
Uploaded by:
Eiz
Luna

