2d cad drawing of apartment flat elevation autocad software
Description
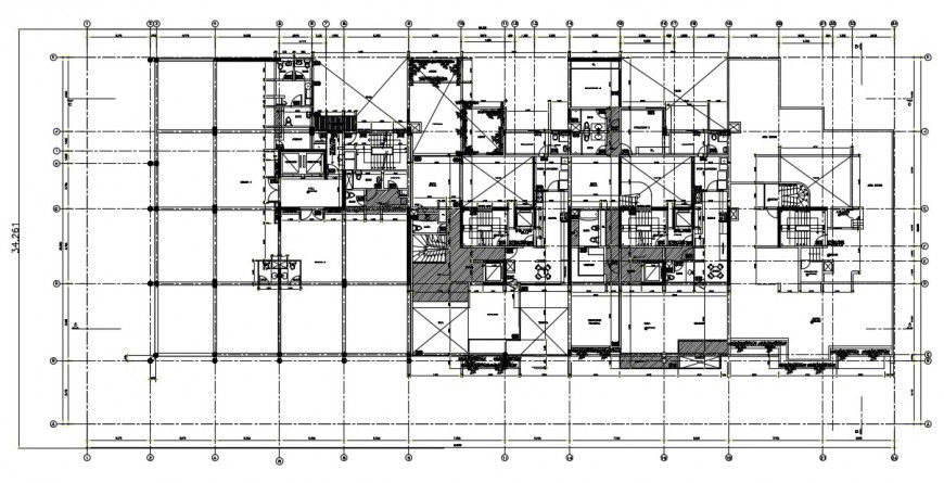
2d cad drawing of apartmrnt flat elevation autocad software detailed with floor plan of living room and dining area and other detailed staircase with toilet area elevation with bath tub and closet and wash basin area and other detailed drawing with related area shown with dining area and other detailed area.
Uploaded by:
Eiz
Luna

