2d cad drawing of plinth beam autocad file
Description
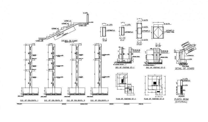
2d cad drawing of plinth beam autocad file tht shows reinforcemnbt intention and compression along with main and distributiin hook up and bent up bars. Stirrupes are provided to hold up bars in position with effec tive covered and clear cover detrail. The struture is reinfoirced concrete cement (RCC) struture and detailed plinth beam.
Uploaded by:
Eiz
Luna

