Twin house layout plan drawing cad file
Description
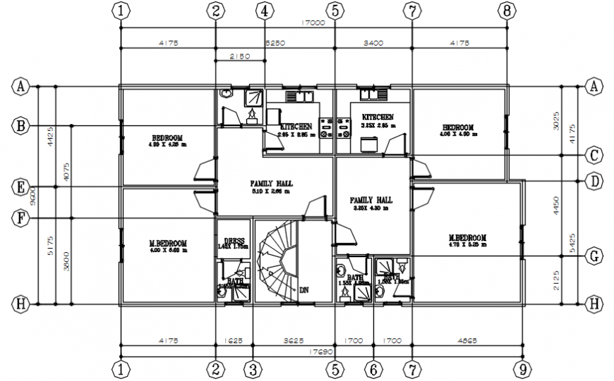
Find here the architecture layout plan of twin house include 2 bedroom, hall, kitchen with furniture detail in autocad software.
Uploaded by:
Eiz
Luna
Find here the architecture layout plan of twin house include 2 bedroom, hall, kitchen with furniture detail in autocad software.
Uploaded by:
Luna