Seating and architecture view of hospital
Description
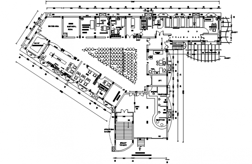
Hospital top view layout plan details , here there is top view layout plan of a hospital with various departments and text detailing in auto cad format
Uploaded by:
Eiz
Luna
Hospital top view layout plan details , here there is top view layout plan of a hospital with various departments and text detailing in auto cad format
Uploaded by:
Luna