Doors and windows elevation and installation for community building dwg file
Description
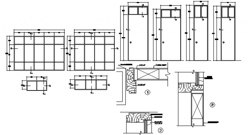
Doors and windows elevation and installation for community building that includes a detailed view of door elevation and window elevation, welded plate for grappling the clamp, door elevation details and door section details, double swing handle with reinforcement rib and expanded metal and ceramic block details, ceramic with block, lintel 2 irons with wood cap and frame and much more of door and window installation details
File Type:
DWG
File Size:
939 KB
Category::
Dwg Cad Blocks
Sub Category::
Windows And Doors Dwg Blocks
type:
Gold
Uploaded by:
Eiz
Luna

