Office cabin layout plan and structure drawing details dwg file
Description
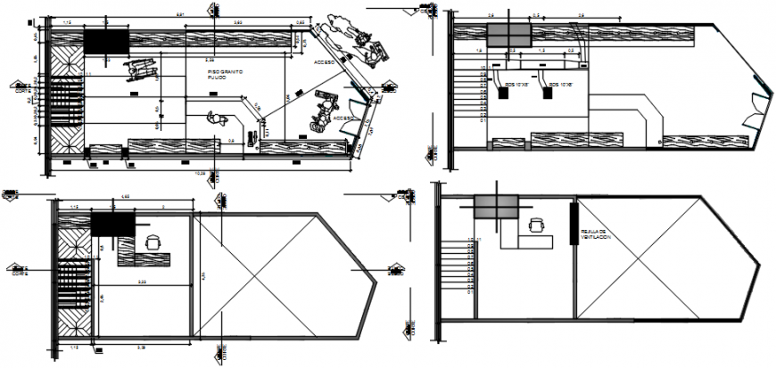
Office cabin layout plan and structure drawing details that include a detailed view of wall sections, furniture layout plan, dimensions and not scale details, sanitary facilities, reception and waiting area etc with colours details and size details, type details etc for multi-purpose uses for cad projects.
Uploaded by:
Eiz
Luna

