Corporate office furniture layout plan DWG AutoCAD file
Description
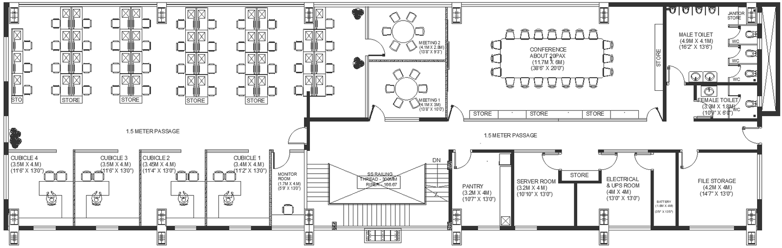
Discover an optimized corporate office furniture layout plan in our AutoCAD DWG file, designed to enhance workspace functionality and efficiency. This resource includes detailed seating arrangements for different departments, providing a comprehensive blueprint for interior designers and architects. Our DWG file showcases a well-planned floor layout with designated plots and space planning strategies. Enhance your project workflow with this detailed 2D drawing resource, compatible with AutoCAD software. Download this CAD file to streamline your office design process and achieve a harmonious workplace layout that meets your needs. Explore innovative solutions for office furniture layout and floor span optimization with our comprehensive AutoCAD DWG file. Unlock the potential of professional CAD drawings tailored for corporate office space planning.
Uploaded by:

